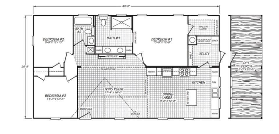
Introducing The Charming Home, a home featuring 3 bedrooms and 2 bathrooms within a cozy 28×52 (48) layout. This new 2024 model is designed with finished drywall and durable 2×6 exterior walls, wrapped in OSB for enhanced protection. The kitchen comes equipped with stainless steel appliances, perfect for your culinary needs.
Price: $79,900
Down Payment: $5,000
Reservation Fee: $2,000
Experience affordable comfort in The Bella, where quality meets value!


